CASE STUDY

Educating a New Generation of Medical Professionals

Bernard J. Tyson School of Medicine

Designed to be a laboratory for medical education, this unique school operates with an emphasis on well being, social justice, and learning by doing.

Work completed with Yazdani Studio of CannonDesign. Project photos: Christopher Barrett.

PRACTICE AREA: ARCHITECTURE

CAPABILITIES:

  • Predesign & Concept

  • Programming

  • Interior Layout & Design

  • Facade Design

  • BIM/VDC Integration

  • Human Centered Design

The 80,000 sf medical school completed in 2020 is LEED Gold certified and located in Pasadena, California.

The project received a 2020 Southern California Development Forum design award and was named top institutional project by the 2021 Rethinking the Future design awards.


Read the Metropolis Magazine project profile.

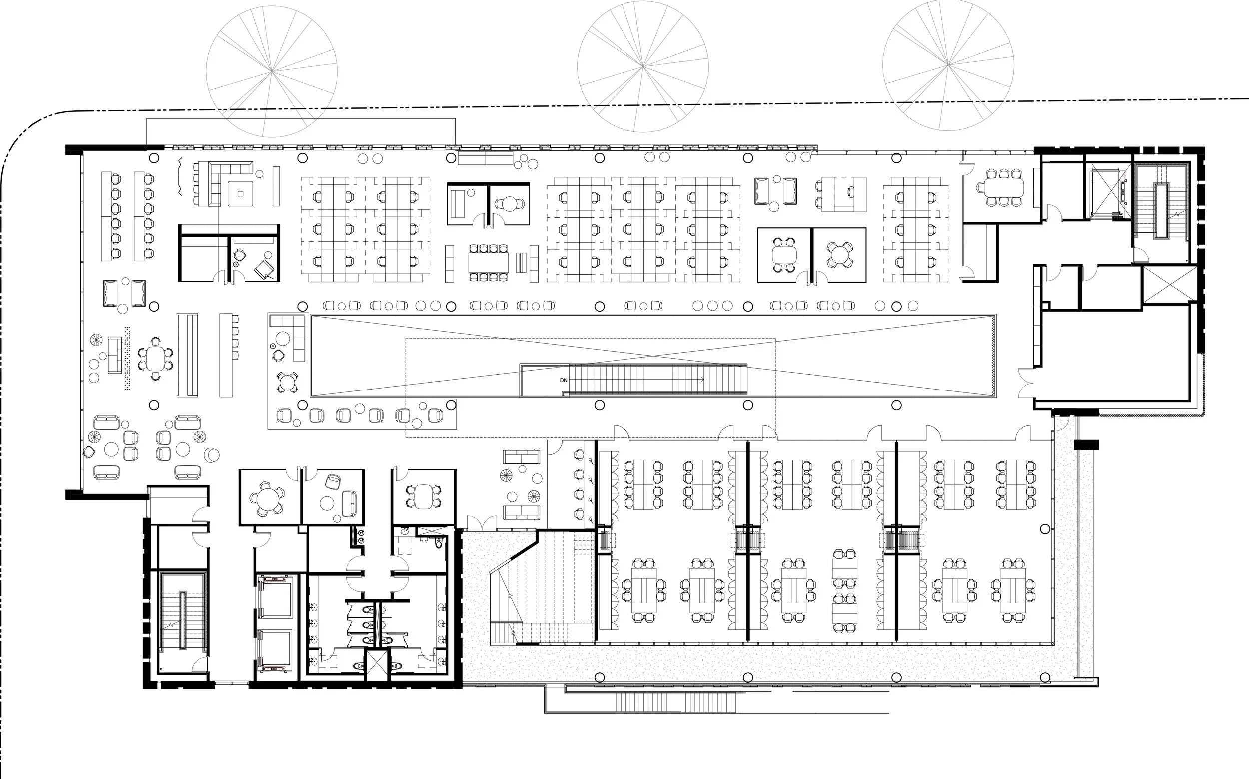
The building is not part of a campus, but is instead part of the city. Typical campus amenities — dining, cafes, gyms, study spaces, and collaboration spaces — were seamlessly integrated into the building’s program.

We reimagined the medical school program as more than a collection of classrooms. The innovative vision for the school demanded an equally innovative architectural response.

We identified the need for “and” spaces in between typical program elements: places for students to collaborate, relax, study, convene, and ultimately to live.

The physical model served as a vehicle for presenting, discussing, and collaborating with the client on the proposed solution.

Rendering of the rooftop garden with adjacent cafe, cafeteria, exercise space, yoga area, and meditation garden.

The project met our client and users where their aspirations took them: an evolving platform supporting a new approach to medical education.

Get the conversation started.

Previous
Previous

Laboratories in Low Earth Orbit

Next
Next

Modular Artificial Gravity Platform